Publisher’s Note: I met structural engineer Clark Baurer when I served as a juror for the Structural Engineers Association of Illinois’ (SEAOI) Excellence in Structural Engineering Awards Competition—his elegant and innovative structural renovation of…
Video: Interview with Structural Engineer Clark Baurer
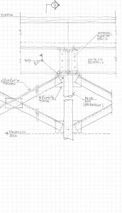
Clark Baurer, S.E., wrote an article in the April 2020 issue of Informed Infrastructure: "It’s the Thought That Counts: Simple Tools (Like…
Senate Passes Stimulus Package With Billions, Potentially, for Construction
Following five days of tough negotiations among Republican and Democratic leaders and the White House, the Senate has overwhelmingly approved a massive measure aimed at helping laid-off workers, financially strapped companies and a stressed health care system—all…
Video: Interview with Theo Agelopoulos, the senior director of Infrastructure Strategy and Marketing at Autodesk
In November 2019, Informed Infrastructure Editorial Director Todd Danielson interviewed Theo Agelopoulos, the senior director of Infrastructure Strategy and Marketing at Autodesk, at the Autodesk University (AU) Conference in Las Vegas.
FTA Makes Emergency Funding Available for Coronavirus Needs
The Federal Transit Administration expanded eligibility of federal assistance via it Emergency Relief Program on March 13 to help transit agencies coping with the Coronavirus in states where the governor has declared an emergency. [Above photo by MBTA.] This…
Now is the Time to Increase Investment in America’s Critical InfrastructureÂ
The scope of the coronavirus pandemic is something we haven’t experienced in our lifetime. Each of us has been recruited to fight an unseen enemy that is disrupting our lives, businesses, and overall economic health. State and local leaders have called on…
HxGN Content Program provides aerial imagery in response to COVID-19
WASHINTON, D.C., USA — Hexagon’s Geosystems division announced today the HxGN Content Program is making its aerial imagery library of the entire United States and Europe freely available to any government agencies and non-profit organizations managing…
OnScale Is Providing Free Cloud Core-Hours to Customers to Mitigate Engineering Productivity Loss Related to the Coronavirus Outbreak
Silicon Valley, CA – OnScale, the global leader in Cloud Engineering Simulation, today announces that it will provide free cloud core-hours to customers to promote customer safety and mitigate any productivity loss due to office shutdowns. OnScale…
Cracks in the Road: Resolving Unintentional Maintenance Impacts on a Residential Development
All residential development projects encounter problems and complications. Some are expected, but most are not. The Summerlake subdivision in Wintergarden, Fla., required maintenance and mitigation due to unexpected construction delays that allowed cracks…




